Sitzung
TA/10/2005
Gremium
Technischer Ausschuss
Raum
Schwetzingen, Rathaus - Großer Sitzungssaal
Datum
01.12.2005
Zeit
17:30-18:00 Uhr
Öffentlicher Teil: |
|||
| Ö 1 | Nachmeldung von Vogelschutzgebieten
Beschluss: Einstimmig Abstimmung: Ja: 13, Nein: 0, Enthaltung: 0, Befangen: 0 | 108/2005 | |
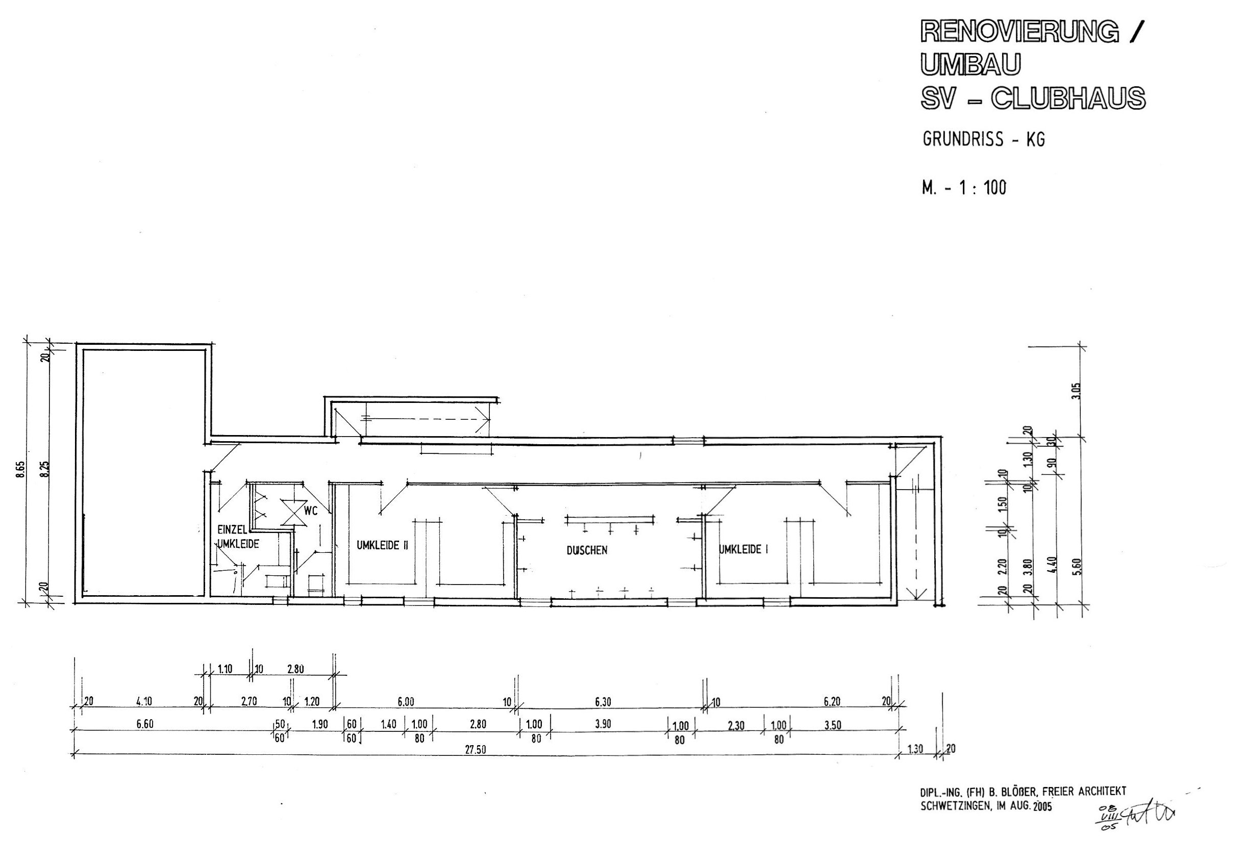
| Ö 2 | SV Stadion - Instandsetzung der Umkleide- und Sanitärräume
Beschluss: Einstimmig Abstimmung: Ja: 13, Nein: 0, Enthaltung: 0, Befangen: 0 | 118/2005 | |
